Características principales
- Dormitorios3
- Baños2
- Superficie380m2
- Terreno6.020m2
- OrientaciónSureste
- ParkingGaraje
- PiscinaNo tiene
- Construcción---
- Reforma2023
Otras características
- Aire acondicionado
- Calefacción bomba calor
- Chimenea
- Cocina independiente
- Doble cristal
- Dos plantas
- Electricidad de red
- Fácil acceso
- Garaje
- Internet
- Puerta de seguridad
- Reformado
- Sistema de alarma
- Suelo de gres
- Techos altos
- Terraza cubierta
- Terreno vallado
- Trastero
- TV satélite
- Vistas a las montañas
Distancias
- Playa/Mar: 5,3km
- Núcleo urbano: 1km
- Rest/Bares: 1,1km
- Aeropuerto: 91km
- Supermercado: 1,1km
Descripción
Preciosa finca rústica a la venta en Teulada (Alicante), situada en una zona tranquila pero muy cerca de las poblaciones turísticas de Moraira, Jávea y Benissa, a tan sólo 1km del bonito pueblo de Benitachell, con restaurantes, supermercados y todos los servicios. La playa más cercana se encuentra a tan sólo 5 kilómetros.
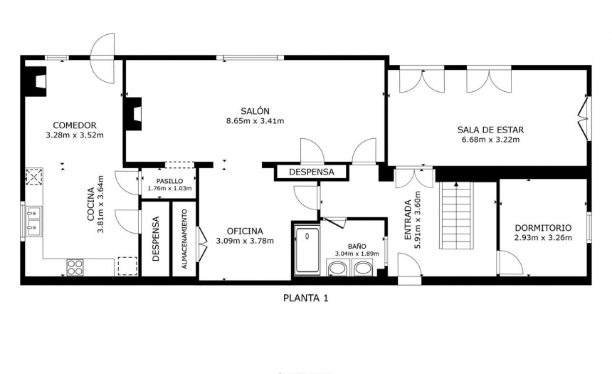
La casa, reformada en 2023, tiene una superficie construida de 380m2 (337m2 habitables) y se asienta sobre un terreno vallado de 6020m2, con gran variedad de árboles frutales. El interior, distribuido en dos plantas, se compone de tres amplios dormitorios dobles muy luminosos, dos cuartos de baño, cocina equipada con horno industrial y varios salones (uno de ellos con chimenea).
Algunas características: Aire acondicionado por splits en todas las habitaciones, calefacción por bomba de calor, doble acristalamiento en toda la casa, orientación sureste, terraza cubierta y descubierta, garaje independiente, sistema de alarma…











































